Catégorie : Public
Maître d’ouvrage : Communauté de commune des luys en béarn
Lieu : Claracq (64)
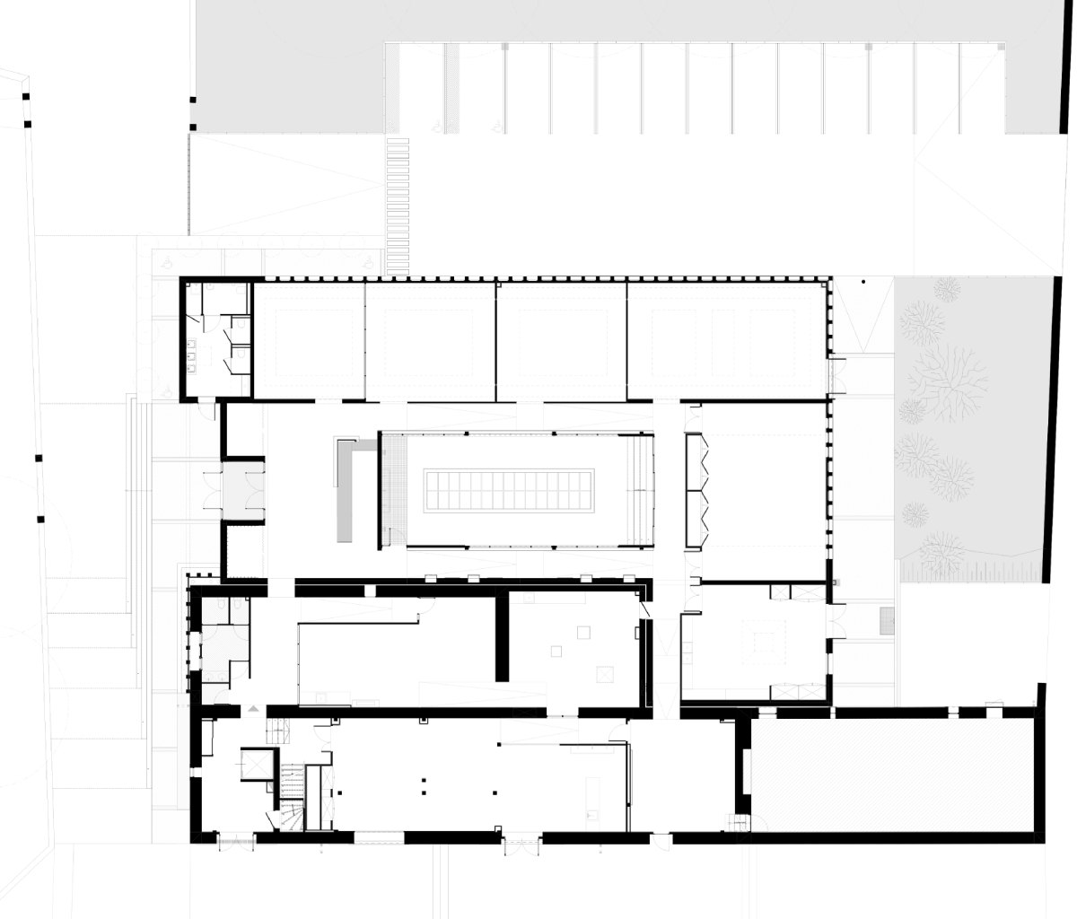
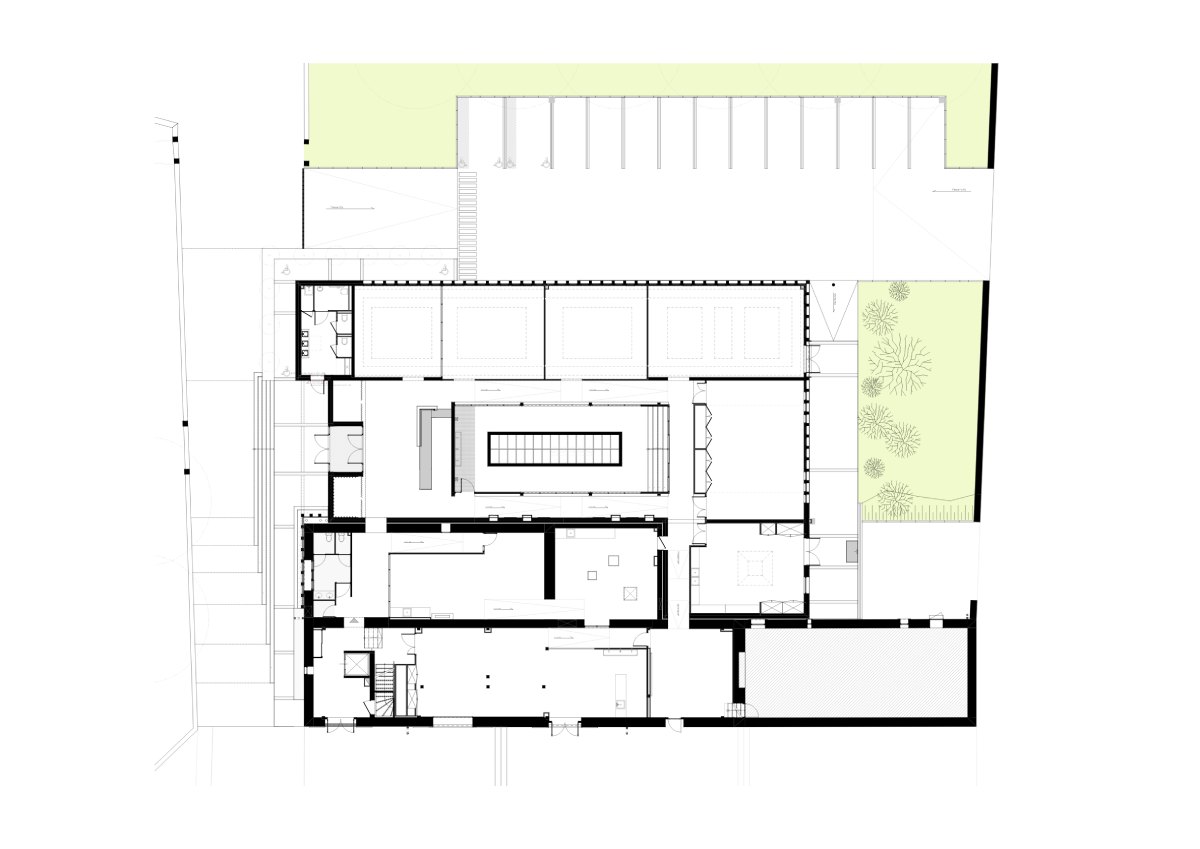
Le Musée Gallo-romain à Claracq est situé au centre du village, l’extension se situe à l’arrière du bâtiment.
L’objectif est avant tout pédagogique, au cœur du projet, la création d’un bac de fouilles à destination des scolaires pour l’initiation à l’archéologie. Redistribution complète du parcours et de la scénographie.
RDC :
4 salles à thèmes, 1 salle de classe 1 (66m2), 1 atelier de fouilles, sanitaires, zone d’accueil, 1 atelier de conception, 2 salles de collections, salle de classe (99m²), 1 salle de projection (37m²), 1 Hall d’accès à l’étage,
Etage : 1 palier (10m²), 1 espace de documentation (47m²), salle de réunion et 3 bureaux.
Construction de 3 immeubles de logements, bureaux et locaux commerciaux, notamment pour les professionnels de santé.
Construction d'un maison individuelle, avec un garage fermé et une piscine pour une emprise au sol de 235m2...
Création de 4 bâtiments indépendants, implantés sur un linéaire Nord-Sud face aux deux nouveaux terrains de football...